想了解更多關于產品、案例等信息,請輸入關鍵詞進行搜索
總部地址:廣州市番禺區天安節能科技園總部中心11號樓
制造基地:肇慶市高新技術產業開發區港南街2號
電話:400-9913-833
傳真:020-34832618
郵箱:info@pkwater.com
奮力拼搏創佳績,捷報頻傳奏凱歌。2020年9月,繼德慶縣新一輪污水處理基礎設施建設全縣捆綁 PPP 項目(重新采購)后,近日鵬凱環境再傳捷報,成功中標四會市城區截污管網應急工程10000噸裝配式污水處理設備采購項目(含3年運營)。
此次項目的成功中標成為鵬凱環境在水環境治理領域的又一重要佳績,這也是鵬凱環境在實現“設計標準化、產品模塊化、生產自動化、施工裝配化”,爭做裝配式污水處理裝備行業排頭兵的發展之路又邁進了堅實的一步。

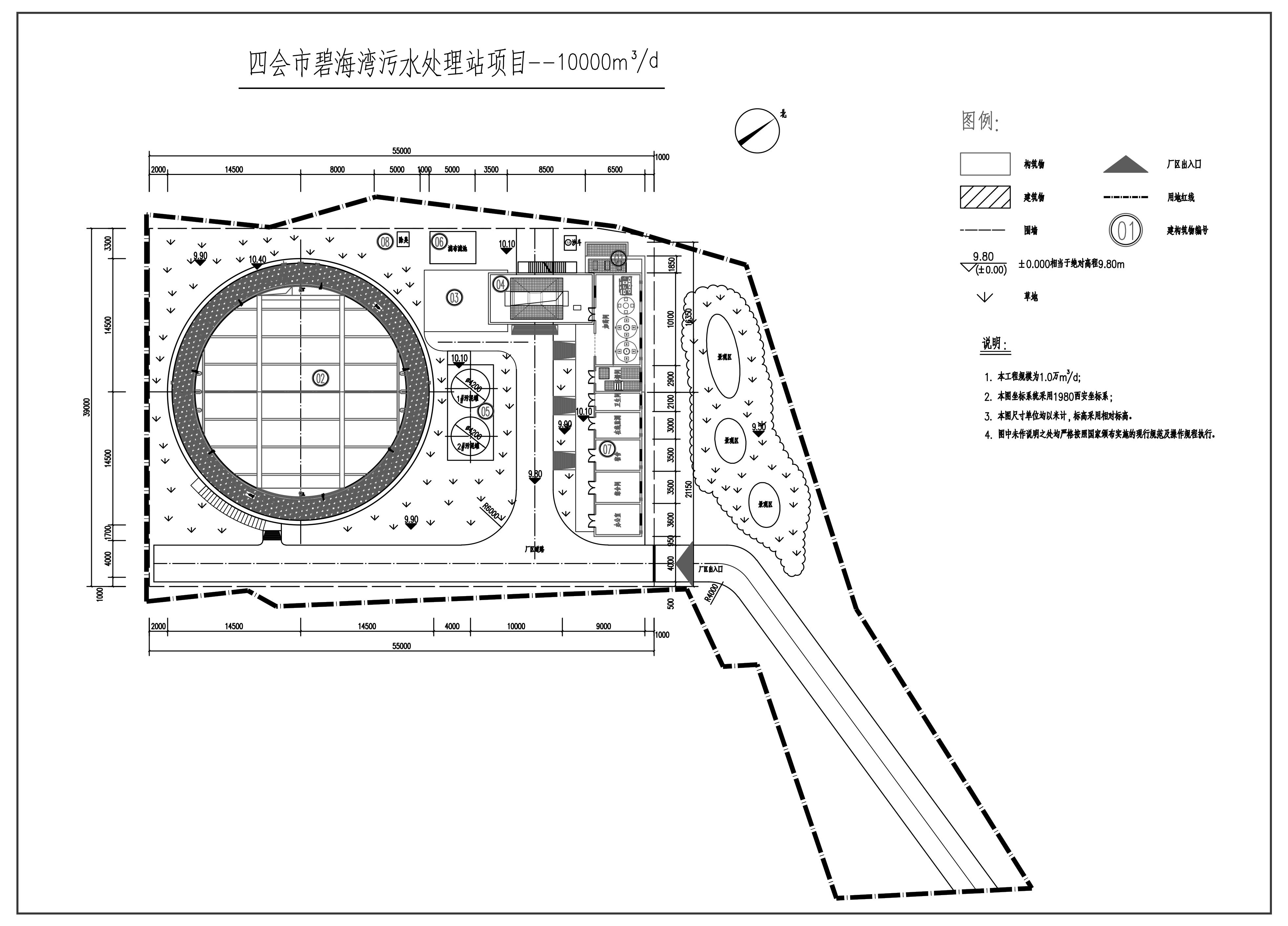
肇慶四會市碧海灣污水處理廠項目
碧水攻堅戰是一場硬仗,更是一場持久戰。2019-2020年,肇慶市污染防治攻堅戰指揮部發布1號令,重點治理水污染領域,嚴格執行“一個斷面、一張圖、一套方案、一個臺賬”,將不穩定達標斷面的攻堅任務細化分解至每個支流斷面,確保“省考”以上斷面水質優良率達到100%,劣Ⅴ類水體比例為0。其中,北江梁村斷面是五個“國考”斷面之一。

北江是廣東省的主要河流之一,是珠江流域第二大水系,而綏江是北江的支流之一,流經四會市大部分城區區域。
肇慶四會市碧海灣污水處理廠鳥瞰圖
為保護肇慶四會市綏江河水水質,需要將內河涌上游居民排放的約5000m3/d生活污水以及碧水灣住宅區約3000m3/d生活污水截留。本項目占地面積約1650平方米,污水處理設計規模為1萬噸/天,出水執行《城鎮污水處理廠污染物排放標準》(GB18918-2002)中一級A標準,達標后排入綏江。本項目將在30天內安裝調試完成,40天內投產運營。

碧海灣截污管網平面圖

項目采用鵬凱環境自主研發的“鵬凱圓-模塊化(裝配式)污水處理系統”,擁有可調控智能曝氣系統、低能耗自循環系統、高效好氧三相分離器的應用、自載固體碳源填料、智慧運營管理系統等核心技術優勢。

“模塊化(裝配式)污水處理系統”突破了傳統污水處理廠建造模式落后、建設周期長、占地面積大、污水處理效率低、運維難度高等一系列關鍵技術難題,在現有傳統污水處理廠建造和轉型升級中取得了重要優勢,經科技成果專家鑒定,達到國際領先水平,為節能環保產業的創新發展提供了重要技術支撐,引領污水處理產業可持續發展。該系統已被廣泛應用于城鎮污水廠建設、擴容及提標改造,應急污水處理廠的建設,水環境治理項目等眾多領域,受到眾多業主、客戶的高度評價和肯定。

肇慶四會市碧海灣裝配式污水廠項目投產運營后,將進一步完善四會市城區污水處理基礎設施,改善城區生態環境,提高居民生活質量,對推動美麗肇慶的建設具有重要意義。

凈化水質,造福于民。作為國內領先的環保水處理設備制造及一站式解決方案服務商,鵬凱環境將以高起點規劃、高標準設計、高質量建設、高水平運維管理,為四會市水環境治理保駕護航,為保護我們碧水藍天的家園貢獻一份責任和力量。